ARKITool: DIB-COORDENADAS, Coordenadas de un punto. en AutoCAD.

2 views · 14y ago 🎲 Random

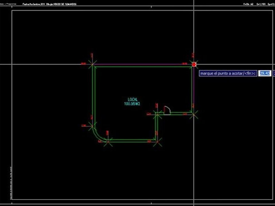
DIB-COORDENADAS es una rutina del programa gratuito ARKITool. Etiqueta las coordenadas de cada uno de los puntos seleccionados en el dibujo. <br /><br />---------------------------- Programa ARKITool ------------------------------------------- <br />Información de DIB-COORDENADAS: http://www.arkiplan.es/index.php?option=com_content&id=646 <br />Vídeo HD de DIB-COORDENADAS: http://www.arkitool.es/ARKIVideos/ARKITool/DIB-Coordenadas/DIB-Coordenadas_controller.swf <br />Información sobre ARKITool / ARKIplan: http://www.arkiplan.es <br />Otras 500 rutinas gratis : http://www.arkiplan.es/programas-de-autocad-gratis/listado-de-programas-gratis <br />Descarga de ARKITool: http://www.arkiplan.es/programas-de-autocad-gratis/descarga-de-los-programas/descargar-arkitool-2011 <br />Gestor de múltiples dibujos: http://www.arkiplan.es/programas-de-autocad-gratis/dibujos-multiples <br />Foro de ARKITool: http://www.arkiplan.es/foros/foro-arkitool