▶ DailyTube
Home 🎲 Random Trending Music Gaming

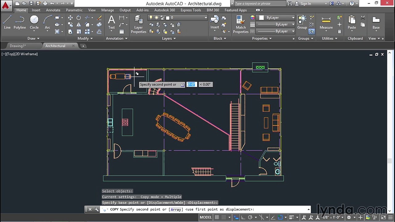
AutoCAD - Measuring Distances - 08-02

17 views · 10y ago 🎲 Random
Study Studio
Study Studio View Channel →

AutoCAD 2006 Chapter 08-02: <br />About Measuring Distances: <br />Learn AutoCAd 2006 Chapter 8 Setting Up a Drawing, Option 02 About "Measuring Distances" for Beginners. Very Simple and Easy Course for Serious Learners.

Related Videos

Astronomers break record by measuring distances across galaxy| Oneindia News 1:28

Astronomers break record by measuring distances across ...

Oneindia 46 views

AutoCAD class 46 in اردو / हिंदी | AutoCAD Measuring Radius, Diameter and Angles in AutoCAD | saqib 4:19

AutoCAD class 46 in اردو / हिंदी | AutoCAD Measuring Ra...

Saqib ALi Chaudary 53 views

AutoCAD class 48 in اردو / hindi | How to Measure Distance, Angle, Area in AutoCAD, autocad, cad 10:14

AutoCAD class 48 in اردو / hindi | How to Measure Dista...

Saqib ALi Chaudary 1 views

Measure Map Pro – Quickly and Precisely Measure Distances, Perimeters and Areas with a Tap of a Button 1:15

Measure Map Pro – Quickly and Precisely Measure Distanc...

NewsWatch 6 views

AutoCAD Measuring Tools 6:01

AutoCAD Measuring Tools

Social Frontier 6 views

14.014 - AutoCAD in Urdu_Hindi by DigiSkills _ Line with Measuring Units 8:24

14.014 - AutoCAD in Urdu_Hindi by DigiSkills _ Line wit...

The Quran Tv 3 views

38 Dividing and measuring (AutoCAD 2016 Essential Training) 6:03

38 Dividing and measuring (AutoCAD 2016 Essential Train...

blossom tv 4 views

.50 CAL Sniper + How To Measure Distances #9 of 14 - Military Sniper Training 8:43

.50 CAL Sniper + How To Measure Distances #9 of 14 - Mi...

Fevuxisali 11 views

Parsecs Explained: How Astronomers Measure the Universe's Vast Distances 0:57

Parsecs Explained: How Astronomers Measure the Universe...

FactFiend 3 views

326. Physics - Need for measuring distance 4:05

326. Physics - Need for measuring distance

Arinjay Jain Academy 1 views

Learning about Measuring Length and Distance 0:37

Learning about Measuring Length and Distance

iKenstore 7 views

Gill Athletics Distance Measuring Wheel Review 2:17

Gill Athletics Distance Measuring Wheel Review

AdelaDona544 36 views

▶ DailyTube

Discover amazing videos from around the world

Browse

Home 🎲 Random Video Trending Music Films

Categories

Gaming Sport News Tech

More

Entertainment Comedy Travel Sitemap

Powered by Dailymotion API · 2026 DailyTube